還可以輸入255個字符
IANA網友(登陸發表)
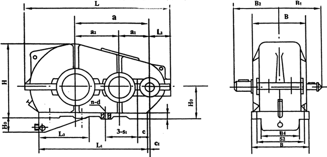
本機應用范圍及結構概況1、應用范圍及優點: 本機廣泛應用于各種起重、運輸、礦山機械及其它各種機械中作減速之用。其聯動方式,可用聯軸器直接聯動,也可用三角皮帶撓性聯動。 本機通用性和互換性強,維修簡單,效率系數為0.94,具有起動阻力小,運動靈活等優點。 本機結構型式為兩級三軸圓柱斜齒水平分割全封式。潤滑油盛于減速機之內部,在主動軸和中間軸上設有擋油板,各軸支點均用滾動軸承,其軸向間隙,可用內部調整環調整之,本機上部有一檢查蓋,下部有油標指針和排廢油用的油。
主要規格
本系列減速機按大小、速比、裝配形式分如下幾種:
1、按主動軸、被動軸中心距分八種型號:JZQ250、JZQ350、JZQ400、JZQ500、JZQ650 、JZQ750、JZQ850、JZQ1000。
2、按速比大小、每種型號又分以下九種速比。(表二)

3、按主動軸和被動軸的裝配方法,又分九種裝配形式。(圖一)

JZQ型圓柱齒輪減速機基本尺寸

型號 | 中心距 | 中心高 H0 | 最大外形尺寸 | 軸端尺寸 | L1 | L2 | L3 | B4 | H1 | g | 安裝尺寸 | 最大 質量 kg | ||||||||||
a | a1 | a2 | L | B | H | 高速軸 B1 | 低速軸 B2 | C | C1 | 孔距 | 孔徑 d | 孔數 n | ||||||||||
S1 | S2 | |||||||||||||||||||||
JZQ250 | 250 | 100 | 150 | 160-00.5 | 540 | 230 | 313 | 200 | 218 | 345 | 101 | - | - | - | 20 | 60 | 28 | 235 | 190 | 17 | 4 | 100 |
JZQ350 | 350 | 150 | 200 | 200-00.5 | 730 | 290 | 440 | 260 | 248 | 470 | 132 | - | - | - | 25 | 100 | 40 | 310 | 250 | 17 | 4 | 200 |
JZQ400 | 400 | 150 | 250 | 250-00.5 | 826 | 310 | 490 | 270 | 303 | 490 | 133 | - | - | - | 25 | 110 | 80 | 370 | 370 | 17 | 4 | 250 |
JZQ500 | 500 | 200 | 300 | 300-00.5 | 986 | 350 | 587 | 330 | 323 | 645 | 148 | - | - | - | 25 | 130 | 80 | 240 | 310 | 17 | 6 | 390 |
JZQ650 | 650 | 250 | 400 | 320-01.5 | 1278 | 470 | 695 | 430 | 428 | 830 | 183 | 495 | 324 | 100 | 30 | 160 | 85 | 215 | 410 | 25 | 8 | 880 |
JZQ750 | 750 | 300 | 450 | 320-01.5 | 1448 | 510 | 740 | 450 | 445 | 1020 | 206 | 620 | 364 | 135 | 35 | 155 | 55 | 275 | 450 | 25 | 8 | 1100 |
JZQ850 | 850 | 350 | 500 | 400-01.5 | 1632 | 580 | 875 | 510 | 523 | 1100 | 236 | 610 | 418 | 105 | 38 | 155 | 75 | 300 | 520 | 32 | 8 | 1500 |
JZQ1000 | 1000 | 400 | 600 | 400-01.5 | 1896 | 660 | 965 | 550 | 603 | 1350 | 257 | 870 | 478 | 200 | 40 | 200 | 100 | 350 | 590 | 32 | 8 | 2230 |


江蘇重泰減速機有限公司
采購 泰興減速機 請選擇重泰減速機有限公司(原 泰興減速機總廠)
全國咨詢電話: 13861821233 傳真:0510-80212333/85516654/85508340
座機:0510-80212111/80212555/80210978/85519221/85518416/85511836
郵箱:1051532995@qq.com 地址:無錫市梁溪區蔚藍路97號